福岡市の中古マンション・中古住宅・土地など不動産情報はおまかせ!!

0120-09-8000

買いたい

ホーム > 買いたい > フォルム福岡南

フォルム福岡南

全面リニューアルした大橋駅徒歩10分

  • 全面リニューアルした大橋駅徒歩10分
  • 表面利回り12%
価格 320万円 PDFを見る
種別 中古マンション
間取り 1K
キャッチコピー 全面リニューアルした大橋駅徒歩10分
その他 西鉄天神大牟田線 大橋駅 徒歩10分
西鉄バス 地禄神社前停 徒歩5分
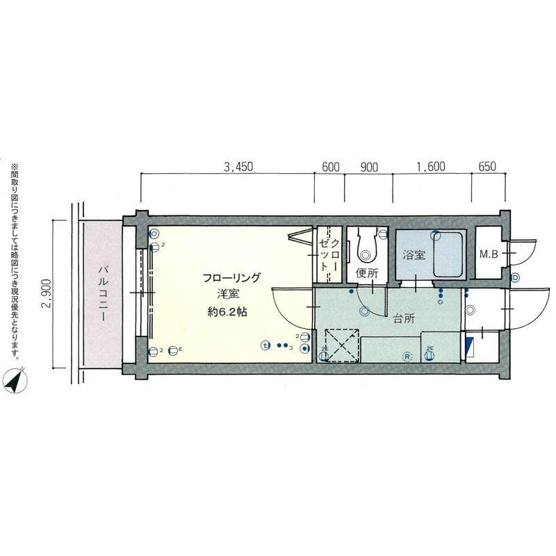
専有面積:壁芯20.09m2(6.07坪)
バルコニー:西 3.77m2 
階建・階:地上4階 2階部分
建物構造:鉄筋コンクリート造 
間取り内訳:洋6.2 
管理費:6,000円(月額) 
積立金:2,000円(月額)
総戸数:17戸 
築年月:1991 [H3] 年7月  
管理会社:西部ガスリビング
現況:賃貸中
月額賃料:32,000円
表面利回り:12%   
設備:オートロック J:COM 給湯 シャワー
エアコン IHクッキングヒーター 室内洗濯機置場  
特記事項:オーナーチェンジ
取引態様:仲介 

株式会社コア    下記までお気軽にお問い合わせください。

売買0120-09-8000 賃貸0120-41-0066

メールでのお問い合わせはこちら

下記までお気軽にお問い合わせください。

売買0120-09-8000 賃貸0120-41-0066

メールでのお問い合わせはこちら